$ 359000
Guide price

Ownership: Freehold
Condition: Good condition
Purpose: No
Reception : Yes
Home age : 40
Lot size (Acres) : 0.224
Monthly HOA Fee : --
PRIVATE ENTRANCE
ELECTRIC FIREPLACE
MODERN FLOORING
EXPANSIVE FENCED REAR YARD
MARBLE-INSPIRED TILE
HIGH CEILINGS
GORGEOUS HARDWOOD FLOORS
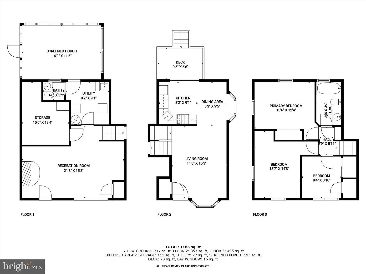
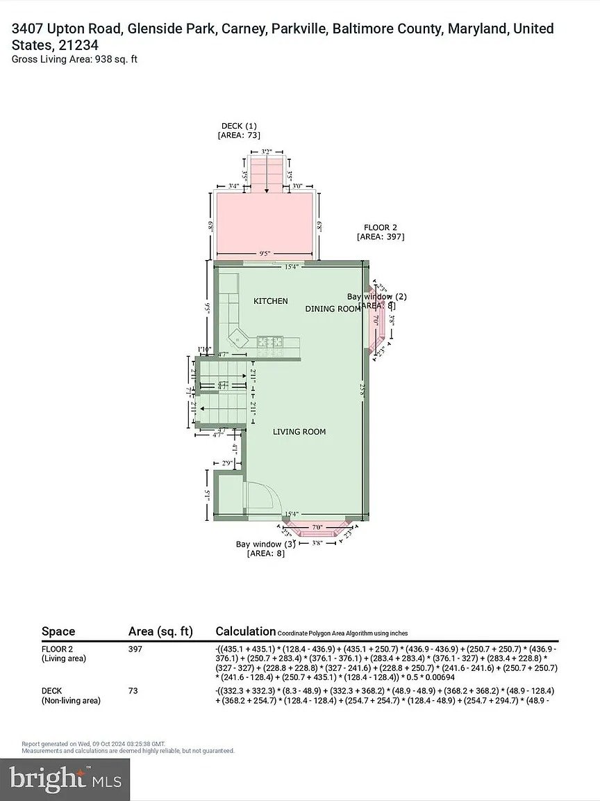
Welcome to the desirable Glenside Park community of Parkville! This stunning brick and wood siding colonial split level offers an inviting open floor plan, drenched in natural light through multiple bay windows. Gorgeous hardwood floors flow through the main level, leading to a spacious dining area and a gourmet kitchen with high ceilings. The kitchen is a chef's dream, featuring ceramic tile flooring, stainless steel appliances, shaker-style cabinetry, and granite countertops. Step outside from the kitchen onto the deck, perfect for outdoor entertaining, overlooking an expansive fenced rear yard. Upstairs, unwind in one of three generously sized bedrooms, each offering ample closet space. The hall bath is beautifully updated with marble-inspired tile, modern flooring, shiplap accents, and a stylish vanity. The lower level adds even more living space with a private entrance, powder room, cozy sunroom with plush carpet, and an electric fireplace framed by brick and built-in bookcases—ideal for a family room, home office, or guest suite. Conveniently located near major commuter routes, including I-83 and I-95, this home combines charm, space, and functionality in a prime location. Don’t miss out on this Parkville gem! Updates: Fence, HVAC, Siding, Kitchen appliances besides, Refrigerator, Paint, Gutters
Monthly repayments
* These results are for a repayment mortgage and are intended as a guide only. Make sure you obtain accurate figures from your broker/lender before committing to any mortgage. The tool, its content and its output are not intended as financial or professional advice nor as an application, offer, solicitation or advertisement as to any loan or loan features, and should not be your primary source of information about mortgage possibilities for you.
Homeilove.us is operated by HOMEILOVE LLC - All rights reserved.